金沢ビル1号(2階)
郵便番号:017-0841
住所:大館市字大町91-1
家賃 :143,000円(税込)
その他経費:共益費3,300円 敷金260,000円 仲介手数料143,000円
建築年:平成15年
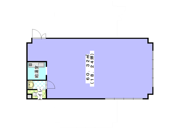
面積:60.32㎡
設備:冷暖房(エアコン1台) 別途エアコン1台は前入居者の残置物 トイレ(水洗) 給湯 クッキングヒーター
駐車場:3台 賃料込み
建物構造:鉄骨造
用途:店舗・事務所
備考:屋外看板設置可(使用料は無料/看板製作は入居者負担)
事業所名:有限会社あかね不動産
代表者役職:代表取締役
代表者氏名:田口 辰美
担当者氏名:立石 悟
連絡先TEL:0186-42-8899
連絡先FAX:0186-43-0482
E-mail:8899@akane-fudousan.co.jp





